Kita Stöckheim
Braunschweig
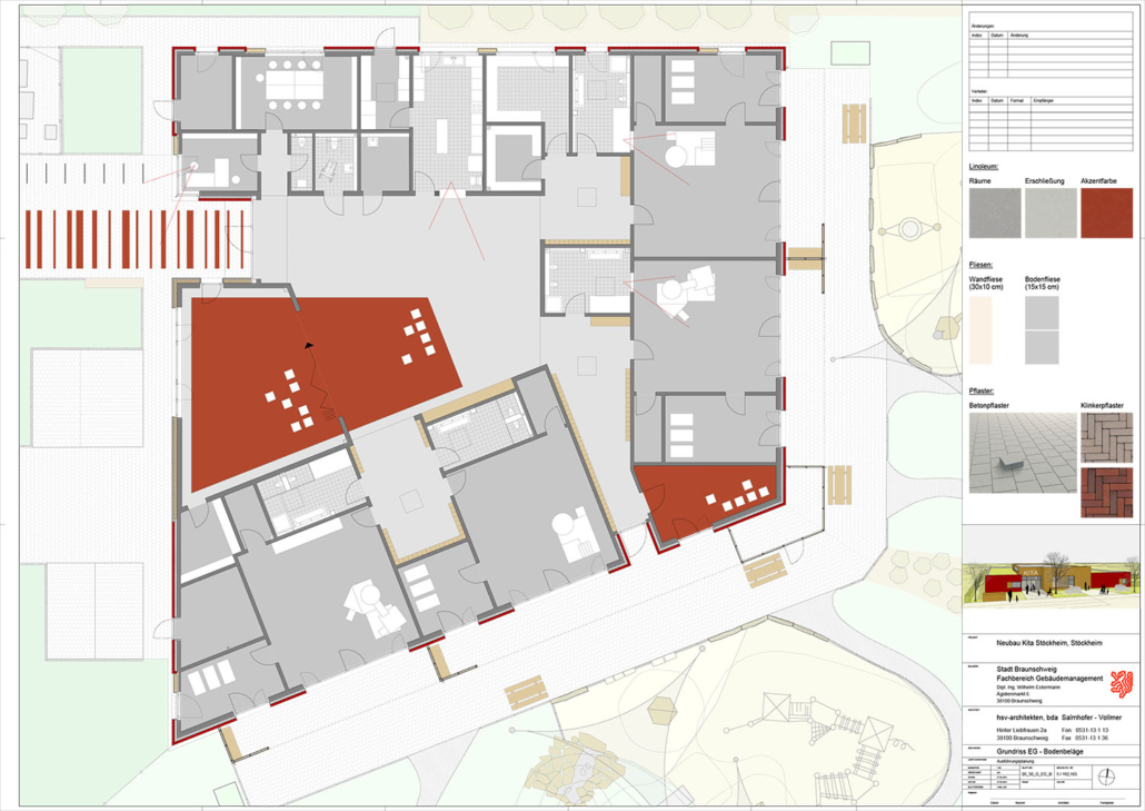
Die 4- zügige Kindertagesstätte wurde als kompakter, trapezförmig sich in das Grundstück einfügender, eingeschossiger Baukörper konzipiert.
Alle Gruppenräume der Kita orientieren sich idealerweise nach Osten oder Südosten. Eine teilweise überdachte, umlaufende Terrasse mit integrierten Sitzbänken leitet von den Gruppenräumen über in den großzügigen Freibereich. Die Verwaltung, die Küche und die Personalräume befinden sich im nördlichen Gebäudeflügel.
Der Grundgedanke des Entwurfs beruht auf der Überlegung, die innere Erschließung und die funktionale Zuordnung aller Räume über einen zentralen Innenraum zu entwickeln. Im Gegensatz zu linearen Entwurfsansätzen wird bei diesem Hallenansatz der Anteil an nur bedingt nutzbaren Verkehrsflächen minimiert.
Der zentrale Innenraum bietet den Vorteil einer von allen Kindern vielfältig nutzbaren Fläche. In Verbindung mit dem Mehrzweckraum, der sich zur Halle öffnen lässt, entsteht ein großer, gemeinsam nutzbarer Kommunikations-, Spiel- und Veranstaltungsraum. Gleichzeitig bieten die Vorbereiche zu den Gruppenräumen identitätsstiftende Nischen und Rückzugsbereiche für die Kinder.
Bauherr:
Stadt Braunschweig
Ausführung:
2020-2022
LPH 2 – LPH 8
BGF: 1.100 m²
Landschaftsarchitekten:
Plan B Landschaftsarchitekten, Lehrte
Fotos:
Sándor Kotyrba

hsv architekten
Christopher Kuriyama