JHH Jugendhaus Hallschlag
Stuttgart
Das Kinder- und Jugendhaus Hallschlag ist eine mit Städtebaufördermitteln unterstützte Rück-, Sanierungs- und Umbaumaßnahme. Das bestehende Jugendzentrum aus dem Jahre 1976 war erkennbar in die Jahre gekommen, entsprach nicht mehr den energetischen Standards und sollte zudem um eine 4-zügige Kindertagesstätte erweitert werden.
So wurde das u-förmig um einen offenen Innenhof angelegte und vollunterkellerte 1-geschossige Gebäude teilweise rückgebaut. Ressourcenschonend wurde das neue Gebäude auf dem Fußabdruck des bestehenden errichtet, mit einer Erdwärmeheizung und PV-Anlage versehen und um ein Geschoss aufgestockt. Bestehende und neue Konstruktionen wurden miteinander verbunden.
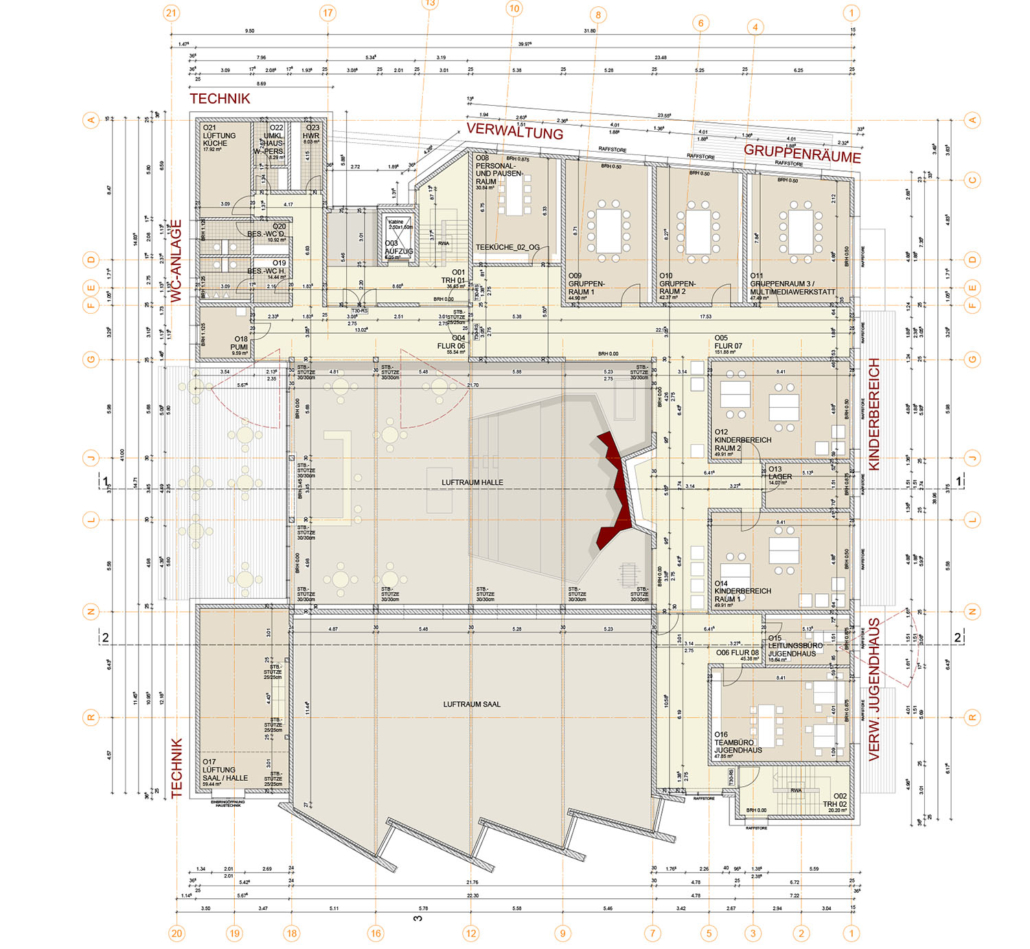
Die Leitidee des Entwurfes beruht auf dem Gedanken, den bisher witterungsoffenen Innenhof zu überdachen und dem neuen Jugendzentrum dadurch eine orientierende Mitte zu geben. Um diese neue Mitte herum gruppieren sich alle Nutzungen.
Gestalt- und Identitätsprägend für das Bestandsgebäude war der im Grundriss mehrfach aufgefächerte Veranstaltungssaal mit seinen Ausblicken in den Grünraum. Der Saal wurde aufwendig saniert und mit neuer Veranstaltungstechnik, u.a. für Rock- und Jugendkonzerte versehen. Seine Holz-Sheddach-Konstruktion wurde zur Überdachung des Innenhofes in Längsrichtung weitergeführt. In der so neu entstandenen Eingangshalle beeindruckt heute die über 3 Geschosse verlaufende neue Kletterwand.
Im neuen JHH befinden sich neben der Kita und den Gruppenräumen des Jugendhauses eine gewerblich nutzbare Küche, ein Tonstudio, ein Fitnessbereich, Multimediaräume und ein vermietbarer Tanz- und Partyraum. Das Gebäude bietet vielfältige Synergieeffekte und wird von den Bewohnern im Stadtteil offen angenommen.
Bauherr:
Stuttgarter Jugendhaus gGmbH
Ausführung:
2022-2025
LPH 2 – LPH 8
BGF: 3.650 m²
Landschaftsarchitekten:
WGF – Werkgemeinschaft Freiraum, Nürnberg
Fotos:
Jürgen Pollak

Christopher Kuriyama